Property ID: S001

Wunderschönes Baugrundstück in Prohens

Grünes Paradies zum Selbstgestalten
GRUNDSTÜCKSFLÄCHE
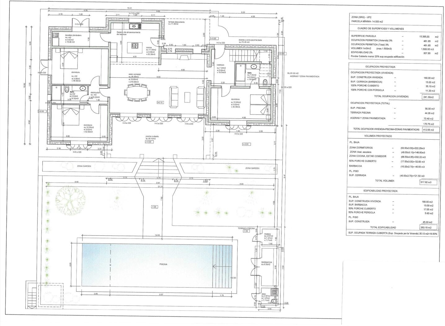
15338 m2
Zu verkaufen

299.000 €

Bergblick

Wunderschönes Baugrundstück mit Bergblick

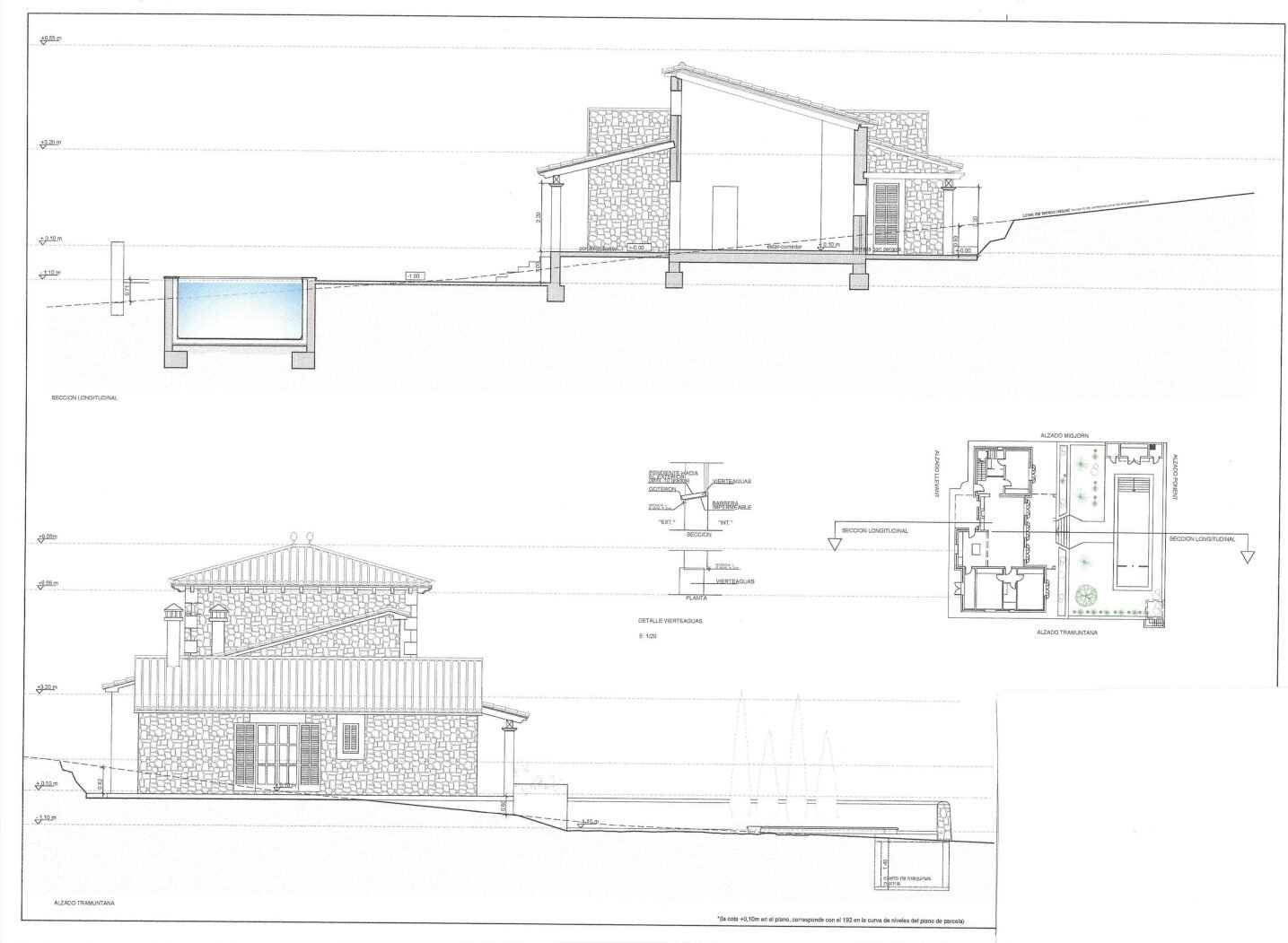
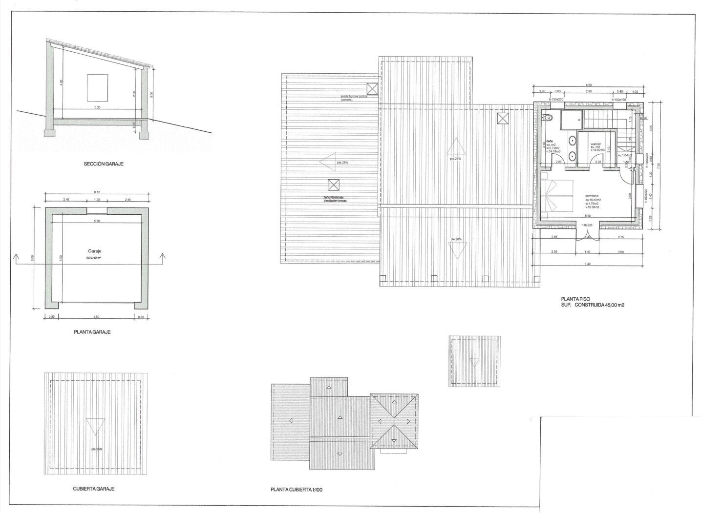
Dieses Baugrundstück befindet sich in der hügeligen und bewaldeten Landschaft bei Prohens zwischen Manacor und Felanitx. Die Baugenehmigung für ein Einfamilienhaus mit Pool wurde von der Gemeinde Manacor bereits zweimalig bewilligt, sie ist inzwischen aber erneut abgelaufen.

Der Anschluss an das Stromnetz ist durch einen gültigen Vertrag mit dem örtlichen Stromversorger gewährleistet. Das Grundstück ist über eine kleine öffentliche und asphaltierte Straße leicht zugänglich.

Die Strände und Buchten der Ostküste sind in wenigen Autominuten erreicht.

Auf dem Grundstück befindet sich ein Brunnen, welcher mit einer Genehmigung wieder aktiviert werden kann.

Kontaktieren Sie uns

Kerstin Swift